
导读:信丰海洋职业培训学校校舍面积1200余平方米,设有多媒体教室、微机房、宿舍、食堂等完善的教学生活设施。最近有小伙伴私聊小编,说看见好学校上架了关于信丰海洋职业培训学校的课程,说这个学校环境和教学条件都很不错,不知道学生能不能学到相关技能和吸收到知识,问有没有关于学生作品类的图片。小伙伴想看,小编就马上安排啦,赶紧收集了信丰海洋职业培训学校的一些学生作品,接下来就让我们一起来看看吧~
作品展示

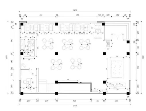
作品一

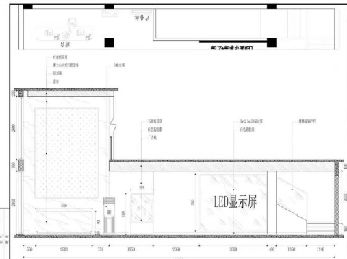
作品二

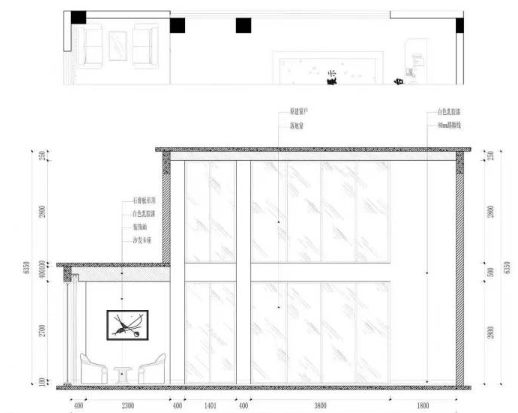
作品三
关于我们
学校办学宗旨:精诚服务学员,培养社会实用型技能人才。
教育教学特点:热诚待学员,陪伴传技术,教学讲实效;多媒体教学,一对一授课,理论+实战演练;学会为止,推荐就业;空调开放,提供食宿。
培训专业设置:计算机初级、中级培训,平面广告设计,室内装饰设计,工程工艺制图,电商微商运营、会计电算。
学员证书:发学员培训合格或结业证书的学校有南昌大学、江西财经大学、天津大学。
学历证书:1.成人大专、本科学历;2.技能认证证书,包括《中高级室内设计师证》《会计初级职称证》《会计信息化证》《平面设计职称证》《计算机中级职业资格证书》《全国计算机等级二级证书》等等。
教学模式:远程教学。
远程教学又叫做电子教学,是通过使用电子通信手段来执行远距离教学,在时间上更加富有弹性并且能传送到任何地方。
远程教学有函授教学、电视教学、广播教学等多种教学方式,它们各有很多优点,譬如能充分利用教育资源让更多的人受教育。信丰海洋学校的远程教学是利用通信、网络、多媒体、计算机设备和技术,克服传统远程教学的局限性而形成的新型远程教学
相关新闻


















