

浏览:67次
正规学校
贴心服务
优质课程

东莞室内设计培训,根据互联网发展趋势,培养学员成为具有互联网整装思维、软装定制、方案设计等方面的全案设计师,成为企业所需求的人才。
复合型室内设计师,竞争优势大
天琥室内全案课程,让学员精通技能操作的同时,也具备项目分析、方案设计、洽谈等各项能力,
培养学员成为复合型设计人才。

掌握技能
CAD制图、3Ds Max效 果图、VR全景、软装设计、柜体定制。

具备能力
家居风 水、施工工艺、工程预算、项目分析、客户治谈。
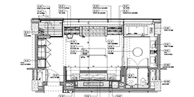
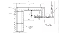
精通CAD软件操作 熟练绘制施工图
将基础的理论知识与实际例子操作相融合,你将掌控CAD操作,擅长各种施工图绘制

平面施工图

立体施工图

节点样施工图
具备柜体定制能力提升空间利用率
精通家装方案设计,具备户型布局、家居风 水、方案汇报等能力;根据不同房型和需求定制
个性化柜体,充分利用空间。

橱柜定制

上下床定制

电视柜定制

书桌书柜定制

鞋柜定制

立面施工图
了解潮流元素掌握各种软装风格
掌握色彩搭配原则,了解软装产品款式、材质,清晰软装主题设定、运用。

现代简约风格

北欧风格

新古典风格

地中海风格

新中式风格
施工现场实战
帮助学员,熟悉装修工程具体施工工艺,能更好的让设计作品落地以及现场施工指导。

水路改造工艺

木作工程工艺

泥工工程工艺

油漆工程工艺
学室内设计,为什么选天琥?
多年教育经验
天琥成立2002年,上市公司旗下机构,教学质量好
教学点分布
多所直营教学点,做到学习就在家附近
严选师资
严格选拔设计讲师,积累项目经验丰富
教学模式
线下面授,线上点评,培养学习主动性
相关推荐课程
相关类目



校区档案









